Our news

With over 25 years of experience in all industry branches we've built well known name.

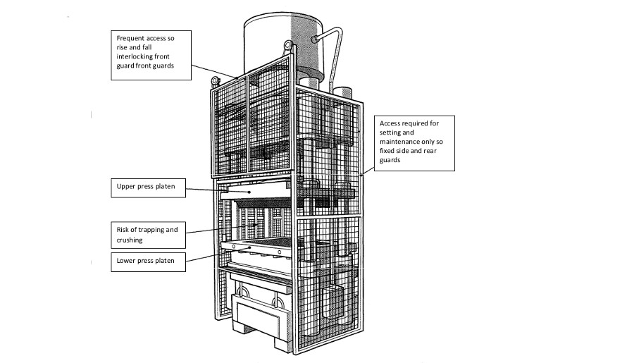
MECHANICAL HAZARDS-2_RUBBER PROCESSING

By 29 March 2019
(0 votes)

When assessing the risks and precautions needed, consideration should be given to:

    • the closing speed;
    • the number of moulds and amount of daylight;
    • whether up-stroking or down-stroking;
    • type of moulds (loose or fixed);
    • mode of operation, in particular, if worked at one or both sides and the number of operators;
    • the amount of body access between the moulds.

Many incidents happen during maintenance and tool changing and adequate controls against preventing falls due to gravity are important for down-stroking presses. These could include scotching or having a pilot operated check valve and counterbalance valve assembly in the hydraulic circuit. For further information on guarding requirements see:

  • BS EN 289 Plastics and rubber machines — Presses — Safety requirements
  • BS EN 201 Plastics and rubber machines - Injection Moulding Machines

Leave a comment

Make sure you enter all the required information, indicated by an asterisk (*). HTML code is not allowed.

"Conduct our relationships with responsibility, honesty and loyalty. Cherish an excellent work environment with respect and cooperation at all levels. Offer products and services with quality, technology and competitiveness. "

Find us at

MAIN OFFICE:
Duqiao, Jingxian, Hengshui, Hebei Province, China

  0086-188-3188-7776
  sales@minghose.com

  0086 -188 3188 7776
  sales@mingflex.com

  Monday - Saturday: 8:00 Am - 18:00 Pm
Sunday: Closed

Send us a message